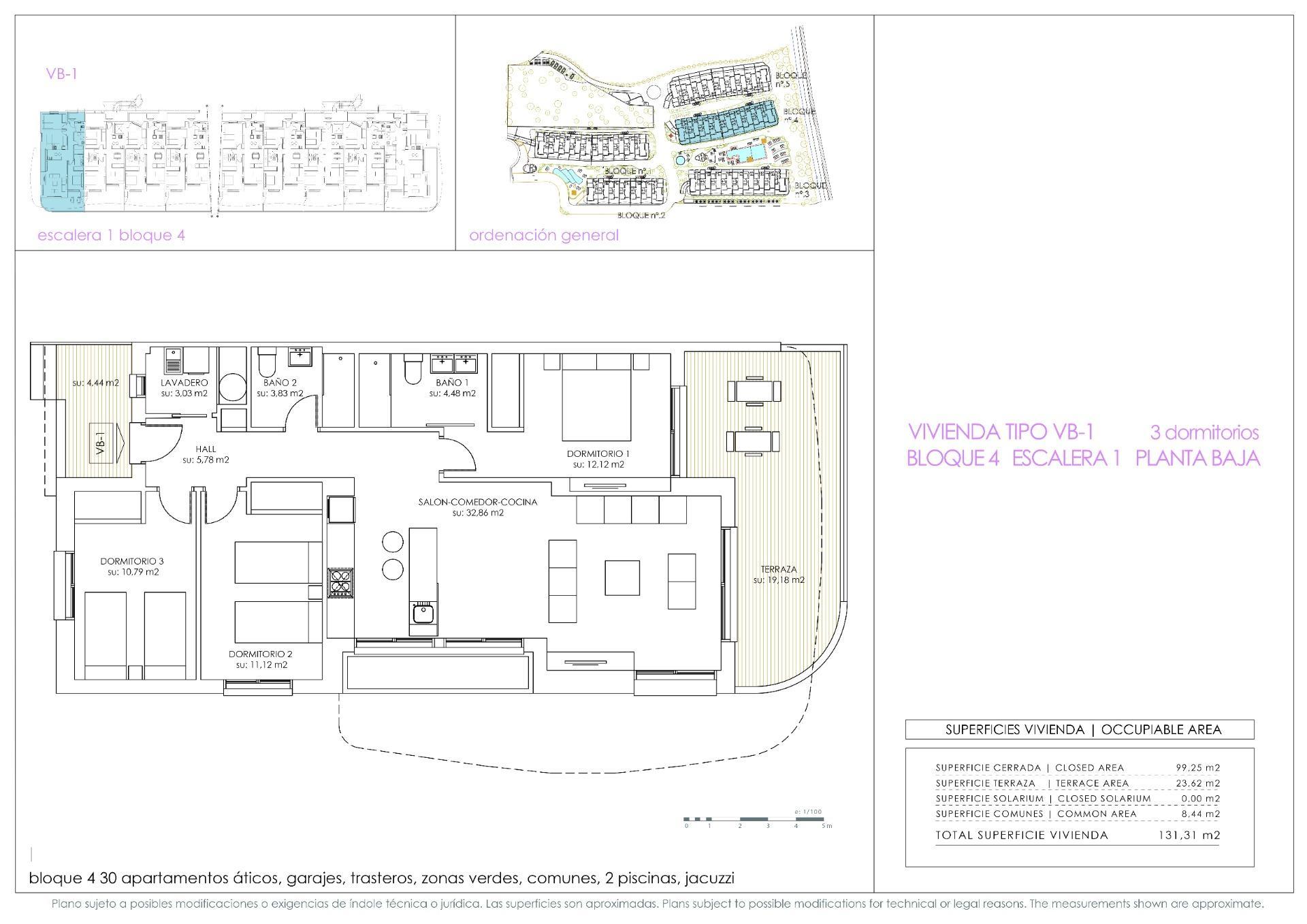
Apartamento en Orihuela Costa, con 99 m² construidos, 90 m² útiles, 3 dormitorios, 2 baños, piscina privada
RESIDENCIAL DE OBRA NUEVA EN PLAYA FLAMENCA !!! De un promotor de gran experiencia en la zona, estamos orgullosos de ofrecer este nuevo residencial recién lanzado a la venta a solo 500 m del mar en la popular zona de Playa Flamenca Orihuela Costa. Residencial con bonitas piscinas comunitarias, jacuzzis y bonitos jardines comunes. Todos los servicios como supermercados, bares y restaurantes, etc. se encuentran a poca distancia en un lugar muy céntrico de Orihuela Costa. Amplia variedad de tipos para elegir: estudios, apartamentos de 1, 2 o 3 habitaciones. Pisos bajos con jardines privados o áticoss con solarium privados. Todas las viviendas cuentan con plaza de garaje y trastero incluidos en el precio. El centro comercial Zenia Boulevard a 1 km y varios campos de golf como Villamartín, Campoamor a 5 km de este residencial lo convertirán en un lugar ideal para sus vacaciones o su vida permanente.
