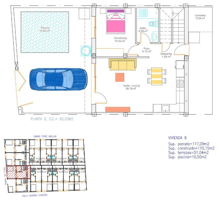
Piso en Avileses, con 107 m² construidos, 95 m² útiles, 107 m² metros de parcela, 3 dormitorios, 2 baños, piscina privada
ADOSADOS DE OBRA NUEVA EN AVILESES Complejo residencial de 14 adosados en Avileses, Murcia. Los adosados cuentan con diferentes zonas de terrazas y amplio solarium, lo que permite disfrutar de todas las horas de sol todos los días del año, con piscina privada y aparcamiento en la parcela. Cada vivienda dispone de 3 dormitorios y 2 baños. Las propiedades han sido diseñadas en tres niveles con un estilo contemporáneo y un concepto abierto, que comprende una cocina totalmente equipada y un salón_comedor. Las propiedades cumplirán con los más altos estándares y estarán equipadas con: Piscina privada . Cocina completamente amueblada y equipada con electrodomésticos Balay: placa vitrocerámica, horno y microondas en la parte superior, campana extractora, nevera integrada y lavavajillas. Cuartos de baño totalmente equipados con: inodoro suspendido, mueble de tocador, espejo y columna de ducha de lluvia. Armarios forrados con cajones. Iluminación interior en cocina, salón, pasillo y baños con focos led. Focos led integrados en la pared del jardín y solarium. Preinstalación de aire acondicionado. La promoción se encuentra en Avileses Murcia, rodeada de todos los servicios e instalaciones deportivas, cerca de varios campos de golf como La Torre Golf y Hacienda Riquelme, además de estar a 20 minutos en coche del aeropuerto de Murcia y a 15 minutos del Mar Menor y las playas del Mediterráneo.
