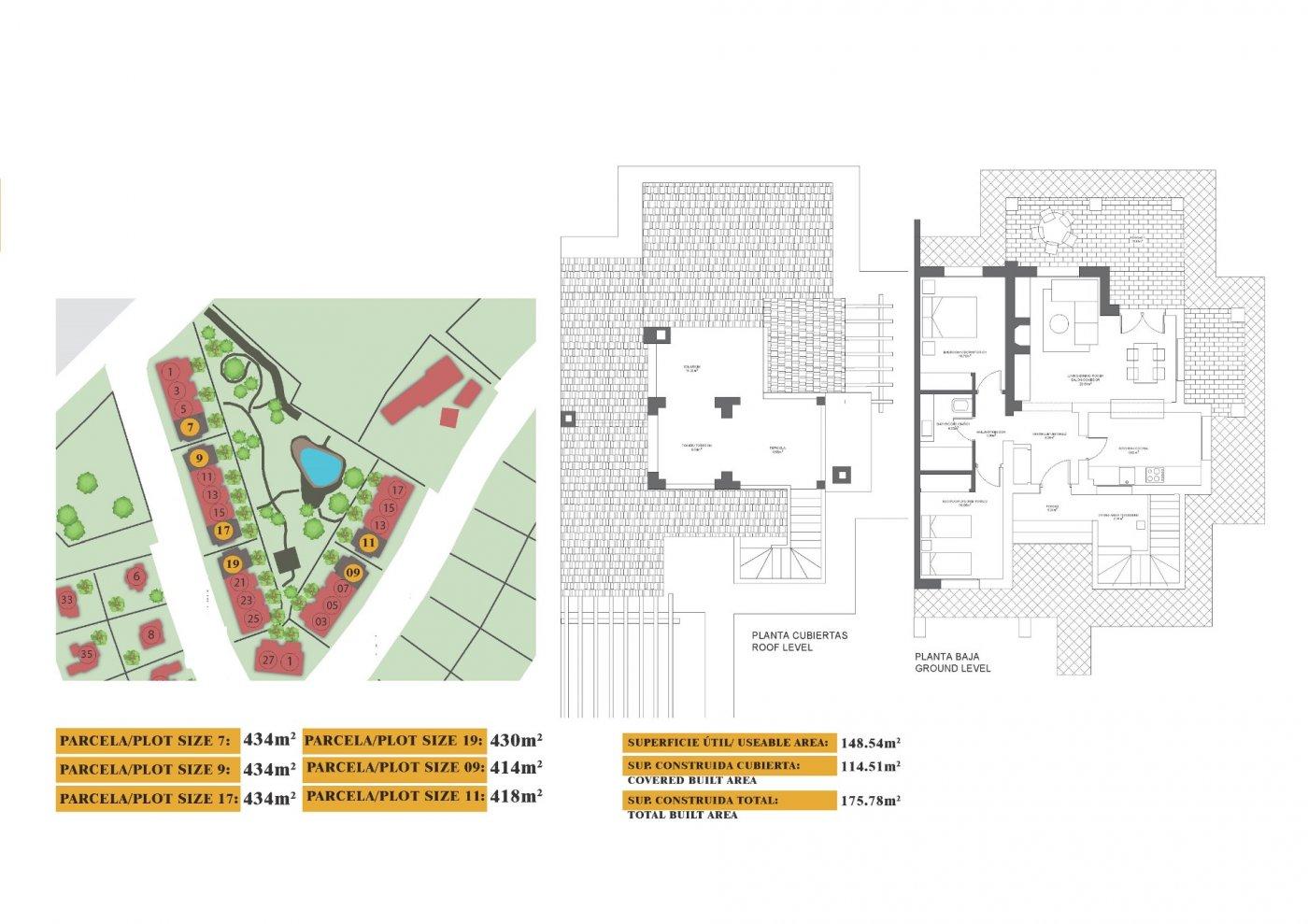
Villa en Fuente Álamo de Murcia, con 175 m² construidos, 148 m² útiles, 430 m² metros de parcela, 2 dormitorios, 1 baños
PAREADO LLAVE EN MANO EN FUENTE ALAMO, MURCIA Residencial de adosados, villas independientes y pareados en Fuente Álamo, Murcia. Hay siete modelos diferentes de casas para elegir, diseñados para adaptarse al gusto de todos. Diseños rústicos combinados con materiales de primera calidad y un enfoque en el espacio de vida cómodo hay algo para todos. Los residentes de esta comunidad privada de hermosas y amplias casas también podrán disfrutar de sus propios jardines y piscinas comunitarias. Este pareado de diseño inusual tiene 2 dormitorios y 1 baño, cocina independiente, salón con puertas de patio que dan acceso al porche cubierto y a la terraza semicubierta de la azotea. Tiene la opción de una piscina privada con un coste adicional. Fuente Álamo de Murcia es una localidad y municipio de la Región de Murcia, en el sur de España. Está situada a 22 km al noroeste de Cartagena y a 35 km al suroeste de Murcia. La ciudad se encuentra en la cuenca del Mar Menor, rodeada por las sierras de Algarrobo, Los Gómez, Los Victorias y el Carrascoy. El agua de estas montañas fluye hacia la Rambla de Fuente Álamo y luego hacia el Mar Menor. Fuente Álamo se encuentra a 30 minutos del aeropuerto de Murcia _ Corvera.
